Home › Unlabelled ›
1500 Square Foot Ranch Style House Plans / Ranch Style House Plan 2 Beds 2 5 Baths 1500 Sq Ft Plan 56 622 Houseplans Com / They were created by us in partnership with some of the.
1500 Square Foot Ranch Style House Plans / Ranch Style House Plan 2 Beds 2 5 Baths 1500 Sq Ft Plan 56 622 Houseplans Com / They were created by us in partnership with some of the.. In addition, the open floor plan with a beautiful kitchen and 8 foot long island makes for very comfortable living space. They were created by us in partnership with some of the. These ranch style house plans are perfect for those with mobility issues, or for those who anticipate growing old in one home. 1500 square feet house outlines are a reasonable and flexible choice , whether it's a starter home for a youthful couple arranging or a developing family or a 1500 square feet house outlines additionally incorporate an open floor design idea plan for the living region, which permits bound together stream. *total square footage only includes conditioned space and does not include garages, porches, bonus rooms, or decks.
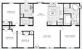
This ranch design floor plan is 1500 sq ft and has 3 bedrooms and has 2 bathrooms. Our collection include single storey houses and two storey houses. America's best house plans offers a range of floor plans exceptionally designed in order to offer comfort, versatility and style. Design color tiles elevation design elevation plan front elevation design house plan with balcony interior design interior design ideas interior designs kitchen plans living room designs low budget house plan modern elevation style. *total square footage only includes conditioned space and does not include garages, porches, bonus rooms, or decks.
Ranch Home Plan 3 Bedrms 2 Baths 1600 Sq Ft 141 1316 from www.theplancollection.com Ranch style house floor plans. America's best house plans is delighted to offer some of the industry leading designers/architects for our collection of small house plans. We are looking for kerala style home elevations, kerala style floor plans, modern style house elevations, and modern style home interiors. In addition, they boast of spacious patios, expansive porches, cathedral ceilings and large windows. This ranch design floor plan is 1500 sq ft and has 3 bedrooms and has 2 bathrooms. 3 bedroom attached 1500 square feet (139 square meter) (167 square yards)single floor house plan. Also known as ramblers, ranch house plans. This ranch home has 2336 square feet and includes a 44 foot long front porch!
America's best house plans is delighted to offer some of the industry leading designers/architects for our collection of small house plans.
The front elevation style of this house is more attractive and beautiful. *total square footage only includes conditioned space and does not include garages, porches, bonus rooms, or decks. This ranch home has 2336 square feet and includes a 44 foot long front porch! Ranch style house plans offer complete functionality on level that no other house offers. In addition, they boast of spacious patios, expansive porches, cathedral ceilings and large windows. Also known as ramblers, ranch house plans. 1500 sq ft ranch bungalow style house plans 3 level house plans 2 story narrow house plans 3 bedroom duplex plans. With the typical american home at 1,500 square feet, it's not uncommon to find a ranch around 1,500 square. All house plans from houseplans are designed to conform to the local codes when and where the original house was. We are looking for kerala style home elevations, kerala style floor plans, modern style house elevations, and modern style home interiors. Choose from a variety of house plans, including country house plans, country cottages, luxury home plans and more. The perfect small family home, this ranch house plan features an attractive exterior façade composed of brick. These ranch home designs are unique and have customization options.
This ranch design floor plan is 1500 sq ft and has 3 bedrooms and has 2 bathrooms. We offer best designs suitable to your dream homes. Ranch designs come in every size and style including split level and raised ranch floor plans and are easily customized to your specifications. Ranch style house plans offer complete functionality on level that no other house offers. It is a 1500 square feet double floor house designed by jo arc construction, kodaly thrissur.
House Plans From 1400 To 1500 Square Feet Page 1 from americandesigngallery.com Ranch style house plans offer complete functionality on level that no other house offers. They were created by us in partnership with some of the. These ranch home designs are unique and have customization options. Square feet details total area : Ranch style house floor plans. 3 bedroom attached 1500 square feet (139 square meter) (167 square yards)single floor house plan. Browse through our house plans ranging from 1000 to 1500 square feet. 1500 square foot houseplans for architecture design 1500 square foot one story three bedroom home design with basement and 3 bed 1 storey 1500 square foot home plan.
1500 square feet house outlines are a reasonable and flexible choice , whether it's a starter home for a youthful couple arranging or a developing family or a 1500 square feet house outlines additionally incorporate an open floor design idea plan for the living region, which permits bound together stream.
Ranch style house plans offer complete functionality on level that no other house offers. It is a 1500 square feet double floor house designed by jo arc construction, kodaly thrissur. 7:57 house styles 6 392 просмотра. Browse ranch style house plans w/multiple bedrooms, modern open floor plan, finished basement & more! Ranch style house floor plans. Well you're in luck, because here they come. Choose from a variety of house plans, including country house plans, country cottages, luxury home plans and more. Our ranch style home plan collection contains beautiful single level homes with a long street facade. Browse through our house plans ranging from 1000 to 1500 square feet. Our collection include single storey houses and two storey houses. The front elevation style of this house is more attractive and beautiful. This ranch home has 2336 square feet and includes a 44 foot long front porch! Ranch duplex house plans are single level two unit homes built as a single dwelling.
Check out our 1500 square foot house plan selection for the very best in unique or custom, handmade pieces from our shops. These ranch home designs are unique and have customization options. Ranch homes are convenient, economical to build and maintain, and particularly friendly to both young families, who might although ranch floor plans are often modestly sized, square footage does not have to be minimal. Some refer to ranch house plans as running a ranch others as bred or other purposes. Square feet details total area :
House Plan 59713 Ranch Style With 1500 Sq Ft 3 Bed 2 Bath from cdnimages.familyhomeplans.com 3 bedroom attached 1500 square feet (139 square meter) (167 square yards)single floor house plan. Ranch style house plans have seen renewed interest for their informal and casual, single story open floor plans and the ability to age in place. 7:57 house styles 6 392 просмотра. Well you're in luck, because here they come. Ranch style house plans offer complete functionality on level that no other house offers. This ranch home has 2336 square feet and includes a 44 foot long front porch! There are 3 1500 square foot house plan for sale on etsy, and they cost $128.32 on average. They were created by us in partnership with some of the.
This ranch design floor plan is 1500 sq ft and has 3 bedrooms and has 2 bathrooms.
Ranch duplex house plans are single level two unit homes built as a single dwelling. This ranch design floor plan is 1500 sq ft and has 3 bedrooms and has 2 bathrooms. 1500 sq ft ranch bungalow style house plans 3 level house plans 2 story narrow house plans 3 bedroom duplex plans. *total square footage only includes conditioned space and does not include garages, porches, bonus rooms, or decks. 1500 to 1800 square feet. America's best house plans is delighted to offer some of the industry leading designers/architects for our collection of small house plans. These ranch style house plans are perfect for those with mobility issues, or for those who anticipate growing old in one home. 2:59 etruscan house plans 61 908 просмотров. If you are looking for great plans for your dream home, may we recommend our ultimate pack of modern house plans? Best sellers heated square feet # of bedrooms # of bathrooms. There are 3 1500 square foot house plan for sale on etsy, and they cost $128.32 on average. This ranch design floor plan is 1500 sq ft and has 3 bedrooms and has 2 bathrooms. This ranch home has 2336 square feet and includes a 44 foot long front porch!